A sycamore in Southfields has been standing at the corner of Gressenhall Road and Cromer Villas Road for decades. The tennis club behind the fence has been there for over 120 years. And right now, the two have a problem.
Southfields Lawn Tennis Club has an ageing clubhouse and a waiting list for new members. For the past ten months, its architects have been trying to design a replacement that works around four trees the council moved to protect the moment the club suggested felling them.
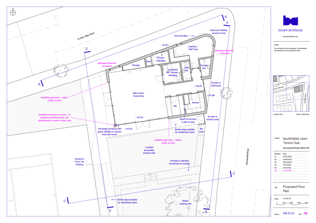
The latest plans still show the building sitting over the sycamore.
The club wants a proper upgrade: accessible changing rooms and showers, a levelled outdoor area for wheelchair users, a bar, kitchen, and dedicated space for coaches and staff. Bryant Architects have been working on it since May 2025, revising the floor plan six times in response to planners’ comments.
When the club submitted a pre-application enquiry to Wandsworth Council last year, the plans included felling one sycamore and three lime trees in its grounds. The council assessed the trees and concluded they were worth protecting before any formal application was made, placing all four under Tree Preservation Order 513/2025 in September 2025.
The club objected. Its arboricultural consultant argued, according to the officer report, that the sycamore and one of the limes were in poor condition, with wood decay and cavities. The council’s tree officer disagreed, finding the trees healthy and “suitable to be covered by a Tree Preservation Order,” and confirmed that if either tree deteriorated, a separate application for removal or pruning could be made at that point. The Planning Applications Committee is due to confirm the TPO on 12 March 2026.

What the current plans show
The most recent floor plan, revision P6 from January 2026, annotates one tree at the southern end of the site with the note “Retain existing tree.” That tree sits outside the building footprint and presents no obstacle to construction.
The difficulty is at the other end. The proposed Coaches and Staff Area, in the north-eastern corner of the new building, is drawn directly over the sycamore on the Gressenhall Road boundary. The plan does not show it being retained.
The council officer report noted the clubhouse “could have been achieved without the loss of the trees.” Whether the current design achieves that remains, on the evidence of the latest drawings, an open question.

What a Tree Preservation Order means
A TPO requires the owner to apply for permission before carrying out any works on a protected tree. If the club wants to argue for removing any of the four, it will need to submit a TPO application supported by arboricultural evidence, which the council will then consider on its merits.
If and when a formal planning application is submitted, it will be publicly consultable on Wandsworth’s planning portal at planning.wandsworth.gov.uk, and will need to show how the club proposes to resolve the conflict between the building it wants and the trees the council has protected.

Why do Wandsworth get so het up
About a sycamore. It’s. Weed. “ Sycamore (Acer pseudoplatanus) is a fast-growing, highly fertile tree often considered an environmental weed due to its invasive, self-seeding nature that outcompetes native species.”.
Make them
Plant an oak or something and get in with looking after their club!